客户端
Alternate Text

发私信

关闭
  • anyway2516
  •  
发表新帖
回复本帖
1 到第

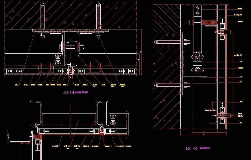
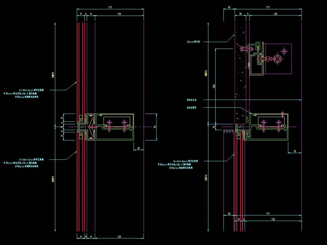
幕墙节点参考  [复制]

阅读[] 回复[0]

发表于 2025/08/25 13:28:52 来自 浙江宁波

楼主

分享到: qq sina

幕墙施工节点做法(玻璃幕墙、石材幕墙、铝板幕墙等)









来自: 东论 Android客户端

Alternate Text

-关注 -粉丝

积分:
0
经验:
0

发私信 关注TA

  • {{item.title}}
    {{item.cataName}} {{item.user}} 更新于 {{item.createtime}}
1 到第

精彩推荐

  • {{reversedTitle(item)}}

    {{item.Summary}}

    {{item.Author}} 广告
    {{item.ReplyCount}} {{item.ViewCount}}

使用 高级回复(可批量传图)

快速回复

写好了,发布 Ctrl + Enter 快速发布

意见反馈

返回顶部